Este estudio analiza la viabilidad urbanística y arquitectónica de una promoción de 60 viviendas en un solar de aproximadamente 3.500 m² en un municipio de la provincia de Badajoz. El objetivo es evaluar el potencial edificatorio del ámbito, definir las tipologías óptimas de vivienda y establecer una propuesta equilibrada entre aprovechamiento urbanístico y calidad residencial.
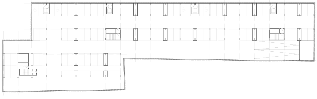
Planta primera | Planta segunda
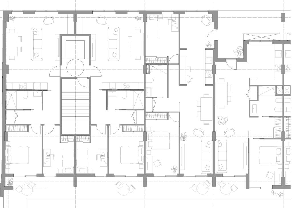
El edificio proyectado presenta una orientación norte-sur, lo que ha permitido diseñar viviendas predominantemente pasantes, con ventilación cruzada y abundante luz natural. Esta configuración mejora significativamente el confort térmico y la calidad ambiental interior.
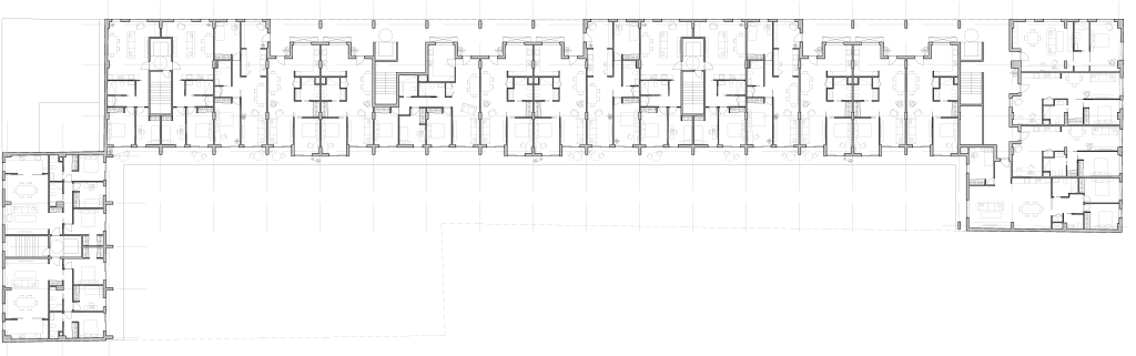
Planta baja. Acceso
Se ha planteado una distribución que combina tipologías de 1, 2 y 3 dormitorios, incorporando espacios flexibles que pueden adaptarse a distintas formas de habitar, promoviendo así modelos residenciales más versátiles y sostenibles.
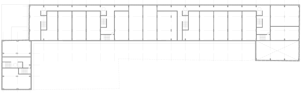
Planta -1. Parking
La propuesta incorpora un aparcamiento en planta semisótano, en el que cada vivienda dispone de al menos una plaza de aparcamiento asignada. Para lograrlo, se ha diseñado un esquema estructural con una modulación de pilares optimizada, que permite compatibilizar la distribución funcional de las viviendas con una implantación eficiente de las plazas. Esta solución garantiza la viabilidad técnica del conjunto, refuerza la funcionalidad del edificio y añade valor comercial a la promoción sin comprometer la calidad del espacio libre ni la edificabilidad prevista.
Alzados y catálogo de viviendas
Detalles de viviendas A, B y C
El análisis normativo ha definido las alineaciones, alturas permitidas y condiciones de ocupación, a partir de las cuales se ha desarrollado un esquema de ordenación coherente y viable, que garantiza una adecuada relación entre espacio privado, zonas comunes y espacio libre.


